Immeuble mixte - vendu - 1190 Forest -

Immeuble mixte - à vendre - 1190 Forest
2 2 220 m² PEB : C

Description

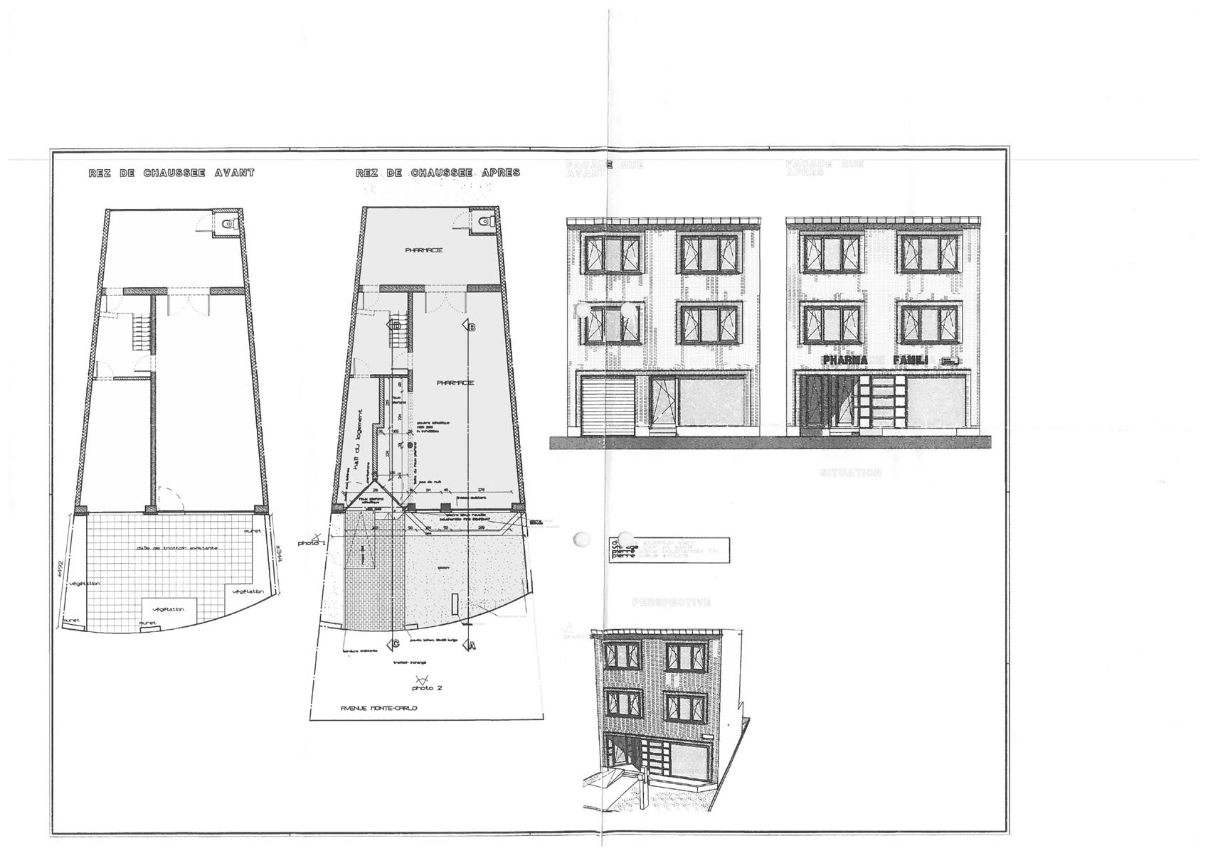
*** SOUS COMPROMIS DE VENTE / VISITES SUSPENDUES *** Ce bel immeuble de rapport 100% loué de 220 m² (hors sous-sol) vous séduira par sa localisation idéale à proximité de toutes les facilités, sa luminosité, son jardin et son excellent état général. C'est un immeuble mixte R + 2 qui a été construit en 1955 et qui dispose d'une largeur de façade de 8,40m. Il offre: AU RDC: un espace commercial de 80 m² avec un agréable jardin de 42 m² à l'arrière. L'espace comprend deux pièces en enfilades. La grande pièce en façade avant dispose de deux entrée séparées (possibilité de scinder) et la pièce en façade arrière bénéficie également de son entrée séparée ainsi que deux toilettes. Cette unité est louée à un centre de formation pour le permis de conduire (anciennement à une pharmacie). AU 1ER ET 2E ETAGE: 2 appartements 1 chambre de 70m². Ils offrent: un hall d'entrée avec placard, un beau séjour de 30m² jouissant d'une jolie vue arborée et d'une belle luminosité (baies vitrées sur toute la largeur de l'immeuble), une cuisine ouverte, une grande chambre à l'arrière (16 m²) et une salle de bain (bain/douche, lavabo, toilette, espace buanderie). Caves. Double vitrage partout, structure béton, chaudières individuelles au gaz. Loyers: 900€ + 600€ + 600€. Possibilité éventuellement de prévoir un étage supplémentaire (à vérifier). Superficie 1 a 93 ca, R.C.N.I.: 2084 € - P.I.: 1918 €. Périmètre EDRLR. Prix: FAIRE OFFRE A PARTIR DE 450.000 €. Infos & visites: 0495 511 555.

Adresse

Avenue de Monte Carlo 1 - 1190 Forest

Général

Référence 4224723
Catégorie Immeuble mixte
Meublé Non
Nombre de chambres 2
Nombre de salles de bain 2
Jardin Oui
Surface du jardin 60 m²
Garage Non
Terrasse Non
Parking Non
Surface habitable 220 m²
Surface du terrain 193 m²
Disponibilité à l'acte

Bâtiment

Année de construction 1955
Parking intérieur Non
Parking extérieur Non
Type de toit toit plat

Nom, catégorie & situation

Etage 0
Nombre d'étages (numéro) 2

Equipement de base

Accès handicapés Non
Cuisine Oui
Chauffage (ind/coll) (type (ind/coll)) individuel
Ascenseur Non
Double vitrage Oui
Chauffage (Format/energie) gaz
Type de cuisine équipée
Sdb (Type) bain
Double vitrage (type) isol. thermique et acoustique
Parlophone Oui

Spécificités terrain

Orientation du bâtiment (-) sud-ouest
Type d'environnement zone d'habitation
Type d'environnement 2 résidentiel
Exposition de la façade avant (-) sud-ouest
Risque d'inondation (type innondation) pas situé en zone inondable
Type de zone inondable zone riveraine délimitée

En chiffres

Largeur front de rue 8
Surface bâtie (-) 200
Nbre de toilette(s) (nombre) 4
Chambre 1 (surface) 16 m²
Chambre 2 (surface) 16 m²
Largeur de façade 8
Cuisine (surface) 6 m²
Possibilité profession libérale (surface) 80 m²
Bureau (surface) 80 m²

Divers

Buanderie Oui
Cave Oui

Domaine juridique

Profession libérale poss. Oui
Affectation urbanistique (-) Mixte
Servitude Non
Permis de bâtir Oui
Permis de lotir Oui
Destination bâtiment (type) im. rapport commerce
Droit de préemption Non
Affectation urbanistique zone d'habitat
Intimation en justice Non

À proximité

Magasins (distance (m)) 30
Écoles (distance (m)) 400
Transports en commun (distance (m)) 30
Centre sportif (distance (m)) 300
Plage (distance (m)) 130000
Magasins Oui
Ecoles Oui
Transports en commun Oui
Plage Oui
Centre sportif Oui
Autoroute Oui
Autoroute (distance (m)) 500

Coûts & Frais

Précompte immobilier (montant) 1917.73 €

Cadastre

Revenu cad. indexé (montant) 3645 €
Section (-) C
Numéro (n°) 218 d 3
Surface (ha/a/ca) (surf. (ha/a/ca)) 1a96ca
Revenu cadastral (€) (montant) 2084 €

Charges & Rendement

Sous régime TVA Non
Loué Oui

Raccordements

Égouts Oui
Électricité Oui
Télévision par cable Oui
Gaz Oui
Câbles téléphoniques Oui
Eau Oui

Équipements techniques

Châssis (Ouvertures) pvc

Type de matériau & évaluation

Type de revêtement de sol linoleum

Sécurité

Porte blindée Oui

Certificats / Attestations

Certificat d'électricité (oui/non) oui, non conforme

Energie

Label PEB (Classe) C
PEB E-SPEC (kwh/m²/an) (Consommation énergétique) 148
Emission CO2 (Emission GES) 29
Prendre contact pour le bien : 4224723

* Champs obligatoires

Préférences pour les cookies

La protection de vos données personnelles est importante pour nous. C’est pourquoi nous détaillons ci-dessous les différents services et fonctionnalités du site qui utilisent des cookies et nous vous laissons décider des cookies que vous souhaitez autoriser ou refuser.

Veuillez cependant noter que si vous bloquez certains types de cookies, cela pourrait impacter votre expérience de navigation sur notre site ainsi que les fonctionnalités disponibles.

Nous utilisons des cookies fonctionnels obligatoires pour assurer le bon fonctionnement du site. Ils sont, par exemple, nécessaires pour retrouver le résultat d’une recherche ou enregistrer le choix de la langue.

Certaines fonctionnalités, comme l’affichage de vidéos ou de cartes géographiques, sont assurées via des composants externes développés par des partenaires comme YouTube ou Google. Certains composants utilisent des cookies qui sont susceptibles de permettre à ces tiers de suivre le comportement des internautes afin, par exemple, de réaliser du ciblage publicitaire. L’activation de ces fonctionnalités et des cookies associés est donc soumis à votre consentement.