Maison - vendu - 1080 Molenbeek-Saint-Jean -

Maison - à vendre - 1080 Molenbeek-Saint-Jean
8 5 270 m² PEB : F

Description

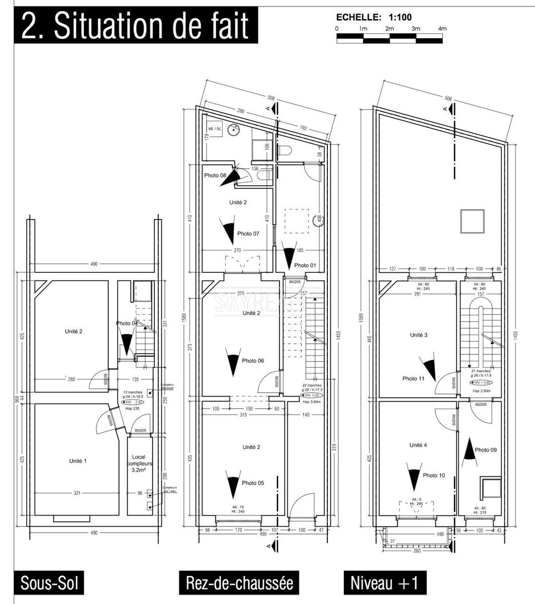
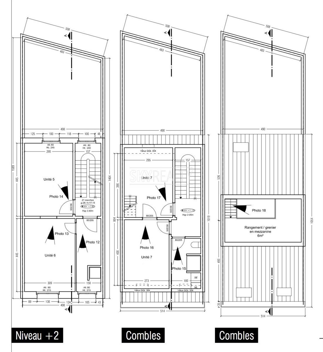
*** SOUS COMPROMIS / VISITES SUSPENDUES *** !!! REMISE EN VENTE !!! => FAIRE OFFRE MAIS SANS CONDITION SUSPENSIVE POUR LE CREDIT !!! LE BIEN EST EN INFRACTION URBANISTIQUE - ARRETE D'INHABILITE SUR LE BIEN (INSALUBRITE) !!! Obligation pour le futur acquéreur de régulariser le bien en revenant vers la situation actuelle connue à l'urbanisme = une maison de commerce (un rez-de-chaussée commercial et 1 logement unifamilial). Une maison 100% unifamiliale (famille ou colocation) ou 2 grands appartements duplex (avis favorable unanime de l'urbanisme) pourraient être envisagés via une demande de permis *** Nous vous présentons cette maison de commerce R+3 de ± 270 m² (caves et mezzanine incluses) qui vous offrira un excellent potentiel après RENOVATION COMPLETE. Localisation pratique à 100m du métro, à côté des commerces et de toutes les facilités. Elle offre (situation en infraction): RDC: Logement 1: app. 1 ch. (séjour, cuisine, ch., SDB, lavabo, WC) et à l'arrière, une cour couverte avec toilette (infraction); SOUS-SOL: 1 ch. (liée au rez-de-chaussée), 1 autre ch. (logement 2), une salle d'eau; 1ER ETAGE: logements 3 & 4: deux pièces & 1 cuisine (avec un coin pour la douche, pas de toilette); au 2E ETAGE: idem (logements 5 & 6); 3E ET. (sous les combles): logement 7: 1 app. 1 ch. (séjour avec cuisine, mezzanine, chambre séparée, SDB, lavabo et WC). Divers: Double vitrage, chaudière centrale au gaz, balcon au 1er étage. Compteurs: 2x gaz, 2x électricité.

Adresse

Rue Adolphe Lavallee 69 - 1080 Molenbeek-Saint-Jean

Général

Référence 4515752
Catégorie Maison
Meublé Non
Nombre de chambres 8
Nombre de salles de bain 5
Garage Non
Terrasse Non
Parking Non
Surface habitable 270 m²
Surface du terrain 76 m²
Disponibilité à l'acte

Bâtiment

Année de construction 1910
Parking intérieur Non
Parking extérieur Non
Type de toit en pente

Nom, catégorie & situation

Etage 0
Nombre d'étages (numéro) 3

Equipement de base

Accès handicapés Non
Cuisine Oui
Chauffage (ind/coll) (type (ind/coll)) collectif
Double vitrage Oui
Chauffage (Format/energie) gaz (chau. centr.)
Type de cuisine semi-équipée
Sdb (Type) douche
Double vitrage (type) isol. thermique et acoustique

Spécificités terrain

Orientation du bâtiment (-) nord-est
Type d'environnement zone d'habitation
Type d'environnement 2 résidentiel
Exposition de la façade avant (-) nord-est

En chiffres

Largeur front de rue 5.14
Surface bâtie (-) 63
Nbre de toilette(s) (nombre) 4
Chambre 1 (surface) 14 m²
Chambre 2 (surface) 14 m²
Chambre 3 (surface) 14 m²
Chambre 4 (surface) 13 m²
Chambre 5 (surface) 12 m²
Largeur de façade 5.14
Nbre de terrasse(s) (nombre) 1
Salle de séjour (surface) 14 m²
Cuisine (surface) 8 m²
Orientation de la terrasse 1 (-) nord-est

Domaine juridique

Affectation urbanistique (-) Maison de commerce
Destination bâtiment (type) im. rapport commerce
Affectation urbanistique zone d'habitat avec une valeur cult., hist. et/ou esthétique

Sécurité

Volets Oui

À proximité

Magasins (distance (m)) 5
Écoles (distance (m)) 400
Transports en commun (distance (m)) 100
Plage (distance (m)) 130000
Centre sportif (distance (m)) 800
Magasins Oui
Ecoles Oui
Transports en commun Oui
Plage Oui
Centre sportif Oui
Autoroute Oui
Autoroute (distance (m)) 4000

Cadastre

Section (-) A
Numéro (n°) 211s4
Surface (ha/a/ca) (surf. (ha/a/ca)) 0,76
Revenu cadastral (€) (montant) 994 €

Raccordements

Égouts Oui
Électricité Oui
Télévision par cable Oui
Gaz Oui
Câbles téléphoniques Oui
Eau Oui

Équipements techniques

Châssis (Ouvertures) bois

Type de matériau & évaluation

Type de revêtement de sol bois

Certificats / Attestations

Certificat d'électricité (oui/non) oui, non conforme

Divers

Cave Oui

Energie

Label PEB (Classe) F
PEB E-SPEC (kwh/m²/an) (Consommation énergétique) 330
Emission CO2 (Emission GES) 62
Prendre contact pour le bien : 4515752

* Champs obligatoires

Préférences pour les cookies

La protection de vos données personnelles est importante pour nous. C’est pourquoi nous détaillons ci-dessous les différents services et fonctionnalités du site qui utilisent des cookies et nous vous laissons décider des cookies que vous souhaitez autoriser ou refuser.

Veuillez cependant noter que si vous bloquez certains types de cookies, cela pourrait impacter votre expérience de navigation sur notre site ainsi que les fonctionnalités disponibles.

Nous utilisons des cookies fonctionnels obligatoires pour assurer le bon fonctionnement du site. Ils sont, par exemple, nécessaires pour retrouver le résultat d’une recherche ou enregistrer le choix de la langue.

Certaines fonctionnalités, comme l’affichage de vidéos ou de cartes géographiques, sont assurées via des composants externes développés par des partenaires comme YouTube ou Google. Certains composants utilisent des cookies qui sont susceptibles de permettre à ces tiers de suivre le comportement des internautes afin, par exemple, de réaliser du ciblage publicitaire. L’activation de ces fonctionnalités et des cookies associés est donc soumis à votre consentement.