
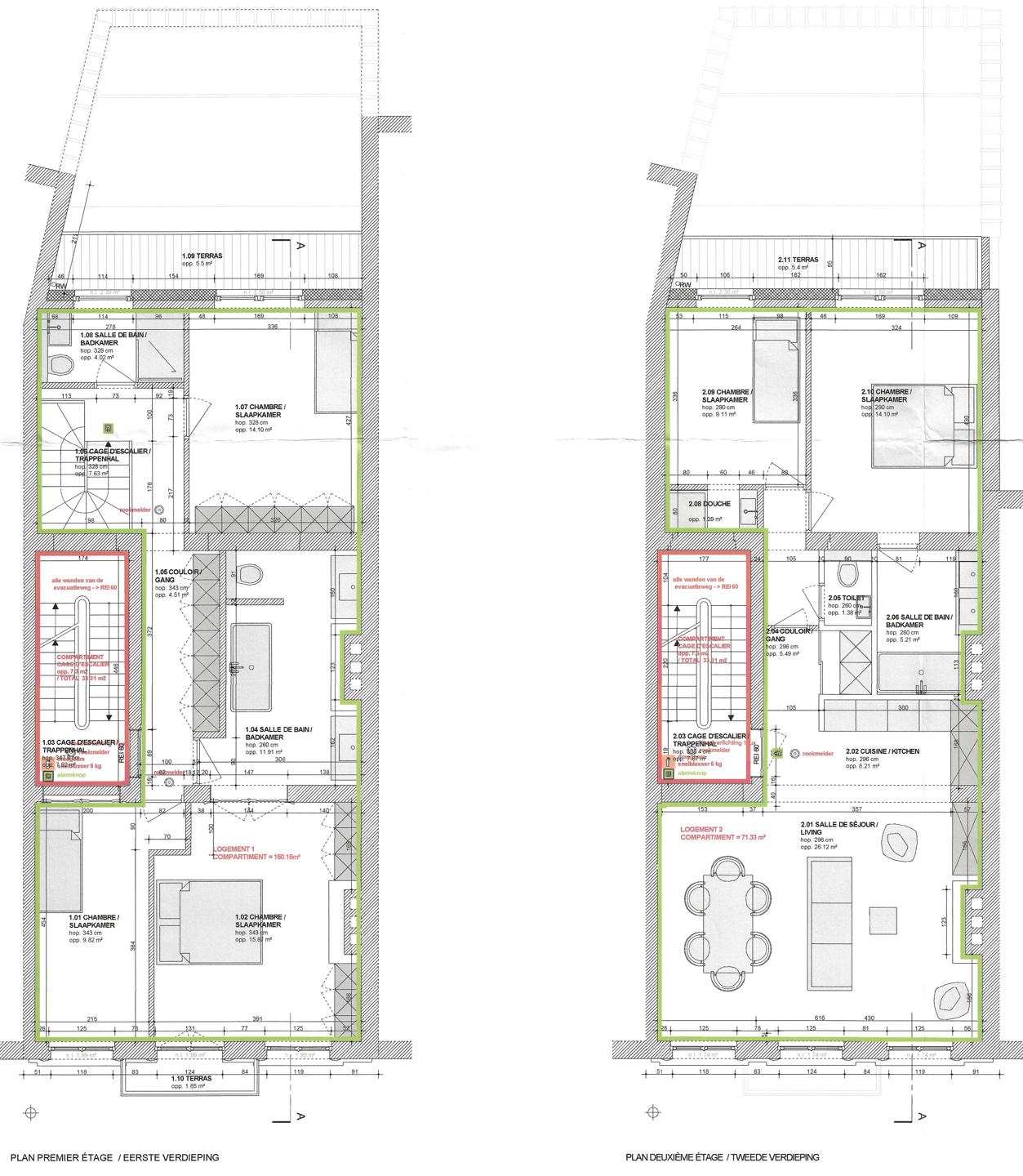
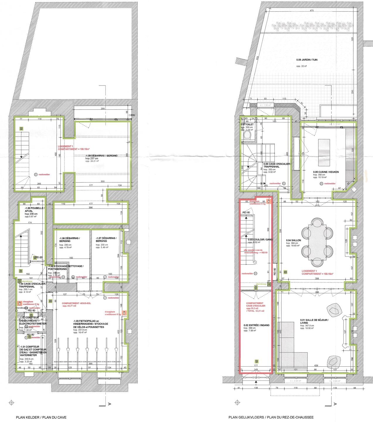
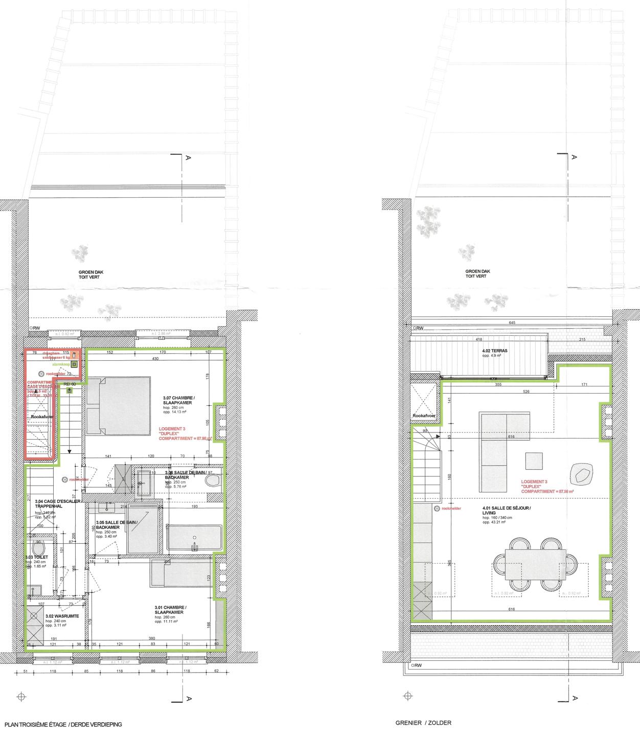
SCHUMAN | QUARTIER EUROPEEN | SQUARE MARIE-LOUISE: Sky Realty a le plaisir de vous présenter en exclusivité cette magnifique maison de maître de ± 420 m² agrémentée d'un agréable jardin de ville de 22 m². Possibilité d'obtenir un étage supplémentaire. L'immeuble a conservé ses caractéristiques d'époque (hauts plafonds, moulures, cheminées en marbre, vitraux, etc.). Excellent potentiel que ce soit comme maison unifamiliale, pour un projet de colocation ou pour developper plusieurs logements. Un permis a été obtenu pour 3 logements comprenant: 1 appartement duplex (3 CH. / 2 SDB) de 150,15 m² + terrasse + jardin, 1 appartement duplex (2 CH. / 2 SDB) de 87,98 m² + terrasse, 1 appartement (2 CH. / 2 SDB) de 71,33 m² + terrasse, locaux techniques (avec lumière naturelle) en sous-sol. Le bien se compose comme suit: hall d'entrée, 3 grandes pièces en enfilades + 4e pièce au fond coté gauche, accès au jardin; entre-sol: toilette, salle de bain; 1er étage: 2 grandes chambres; 2e étage; 3 chambres; 3e étage: 3 chambres + combles; sous-sol: grandes caves. Quartier calme, verdoyant et sécurisé. Localisation premium à coté des institutions européennes, de Schuman/Maelbeek (Métro - Bus - Gare - STIB Airport/Nato Line - Taxis - Cambio - Villo) avec tous les services à proximité: bars, restaurants, commerces, supermarchés, pharmacies, poste, centre de fitness/médical. Accès aisé aux grands axes autoroutiers. Le Parc du Cinquantenaire accessible aisément à pied.
Rue du Marteau 74 - 1000 Bruxelles
Référence | 5104254 |
---|---|
Catégorie | Immeuble à appartements |
Meublé | Non |
Nombre de chambres | 8 |
Nombre de salles de bain | 1 |
Jardin | Oui |
Surface du jardin | 22 m² |
Garage | Non |
Terrasse | Oui |
Parking | Non |
Surface habitable | 420 m² |
Disponibilité | à l'acte |
Année de construction | 1900 |
---|---|
Parking intérieur | Non |
Parking extérieur | Non |
Accès handicapés | Non |
---|---|
Cuisine | Oui |
Chauffage (ind/coll) (type (ind/coll)) | collectif |
Ascenseur | Non |
Chauffage (type) | gaz |
Type de cuisine | non-équipée |
Sdb (type) | bain |
Orientation du bâtiment (façade arrière) | sud |
---|---|
Type d'environnement | zone d'habitation |
Type d'environnement 2 | résidentiel |
Exposition de la façade avant | sud |
Largeur front de rue | 6.4 |
---|---|
Surface bâtie (surf. bât. princ.) | 310 |
Nbre de toilette(s) (nombre) | 6 |
Chambre 1 (surface) | 17 m² |
Chambre 2 (surface) | 15 m² |
Chambre 3 (surface) | 14 m² |
Chambre 4 (surface) | 14 m² |
Chambre 5 (surface) | 11 m² |
Largeur de façade | 6.4 |
Nbre de terrasse(s) (nombre) | 2 |
Salle de séjour (surface) | 37 m² |
Cuisine (surface) | 10 m² |
Orientation de la terrasse 1 | nord |
Buanderie | Oui |
---|---|
Bureau | Oui |
Cave | Oui |
Magasins (distance (m)) | 50 |
---|---|
Écoles (distance (m)) | 400 |
Transports en commun (distance (m)) | 100 |
Plage (distance (m)) | 1080000 |
Centre sportif (distance (m)) | 400 |
Ecoles | Oui |
Transports en commun | Oui |
Plage | Oui |
Centre sportif | Oui |
Autoroute | Oui |
Autoroute (distance (m)) | 2000 |
Précompte immobilier (montant) | 2319 € |
---|
Section | Bruxelles 5e Division |
---|---|
Revenu cadastral (€) (montant) | 2407 € |
Servitude | Non |
---|---|
Jugement en cours | Non |
Destination bâtiment (type) | privé - habitation |
Droit de préemption | Non |
Affectation urbanistique | zone d'habitat avec une valeur cult., hist. et/ou esthétique |
Égouts | Oui |
---|---|
Électricité | Oui |
Télévision par cable | Oui |
Gaz | Oui |
Câbles téléphoniques | Oui |
Eau | Oui |
Châssis (type) | bois |
---|
Surface de terrasse 1 | 10 m² |
---|
Certificat d'électricité (oui/non) | non |
---|