
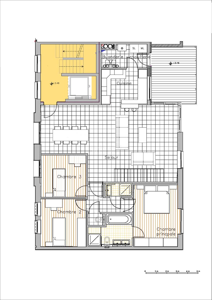
Chaussée de Mons / Quartier Veeweyde / Rauter-Sud / Sq. Elsa Frison: Ce spacieux appartement neuf 3 chambres de 121 m² au 1er étage d'un petit immeuble vous comblera par ses surfaces généreuses, sa grande terrasse, ses finitions de qualité et ses caractéristiques techniques de haut niveau. Il se compose comme suit: un spacieux et lumineux séjour de 38 m² avec accès à la terrasse, une cuisine américaine de qualité supérieure hyper-équipée (électroménagers Bosch: réfrigérateur-congélateur, taque à induction, hotte, four et micro-ondes encastrés, lave-vaisselle), une buanderie, un hall de nuit, trois grandes chambres (15-15-14 m²), une spacieuse salle de bain (bain, douche, lavabo double vasque et toilette), une salle de douche (douche, lavabo), une toilette séparée, une cave et un emplacement de parking couvert en sous-sol (option obligatoire = +80€). Des parkings et garages supplémentaires sont en option. Local vélos & poussettes. Accès à un jardin commun à l'arrière. Proximité immédiate avec tous les services et les facilités de ce quartier (Métro, transports publics, écoles, commerces, connexion aisée aux grands axes autoroutiers). Un bien situé dans un projet résidentiel de qualité supérieure, à taille humaine et exemplaire en matière d’écologie et de convivialité. Loyer 1250€ + 120€ de charges (provision pour les communs). Chauffage, eau, électricité (et télécoms) à charge du preneur. PEB: B. Colocation bienvenue. Libre 1 janvier 2020. Infos et visites: David: 0495 511 555
Chaussée de Mons 701 - 1070 Anderlecht
Référence | 3935792 |
---|---|
Catégorie | Appartement |
Meublé | Non |
Nombre de chambres | 3 |
Nombre de salles de bain | 2 |
Garage | Non |
Terrasse | Oui |
Parking | Oui |
Surface habitable | 121 m² |
Disponibilité | immédiatement |
Année de construction | 2017 |
---|---|
Parking intérieur | Oui |
Parking extérieur | Non |
Parking(s) intérieur (nombre) | 1 |
Etage | 1 |
---|---|
Nombre d'étages | 2 |
Accès handicapés | Oui |
---|---|
Cuisine | Oui |
Chauffage (ind/coll) (type (ind/coll)) | individuel |
Ascenseur | Oui |
Double vitrage | Oui |
Chauffage (type) | gaz |
Type d'ascenseur | personnes |
Type de cuisine | amer. super-équipée |
Sdb (type) | bain |
Double vitrage (type) | isol. thermique et acoustique |
Videophone | Oui |
Surface bâtie (surf. bât. princ.) | 121 |
---|---|
Nbre de toilette(s) (nombre) | 3 |
Chambre 1 (surface) | 15 m² |
Chambre 2 (surface) | 15 m² |
Chambre 3 (surface) | 14 m² |
Largeur de façade | 10.5 |
Nbre de terrasse(s) (nombre) | 1 |
Salle de séjour (surface) | 38 m² |
Cuisine (surface) | 7 m² |
Orientation de la terrasse 1 | ouest |
Buanderie | Oui |
---|---|
Animaux domestiques | Oui |
Cave | Oui |
Affectation urbanistique (type) | Logement |
---|---|
Destination bâtiment (type) | privé - habitation |
Affectation urbanistique | zone d'habitat |
Magasins (distance (m)) | 10 |
---|---|
Écoles (distance (m)) | 228 |
Transports en commun (distance (m)) | 100 |
Centre sportif (distance (m)) | 300 |
Magasins | Oui |
Ecoles | Oui |
Transports en commun | Oui |
Centre sportif | Oui |
Autoroute | Oui |
Autoroute (distance (m)) | 2000 |
Charges locataire (montant) | 120 € |
---|---|
Garantie locative (nombre de mois) | 2 |
Loué | Oui |
Piscine | Non |
---|
Contrôle d'accès | Oui |
---|---|
Sécurité | Oui |
Concierge | Oui |
Porte blindée | Oui |
Électricité | Oui |
---|---|
Télévision par cable | Oui |
Gaz | Oui |
Câbles téléphoniques | Oui |
Eau | Oui |
Châssis (type) | aluminium thermique |
---|
Type d'environnement | résidentiel |
---|---|
Type d'environnement 2 | zone d'habitation |
Exposition de la façade avant | sud-est |
Risque d'inondation (type innondation) | pas situé en zone inondable |
Type de zone inondable | zone riveraine délimitée |
Surface de terrasse 1 | 14 m² |
---|
Certificat d'électricité (oui/non) | oui, conforme |
---|
Label PEB (classe) | B |
---|---|
PEB E-SPEC (kwh/m²/an) | 76 |
Emission CO2 (émission CO2) | 15 |