
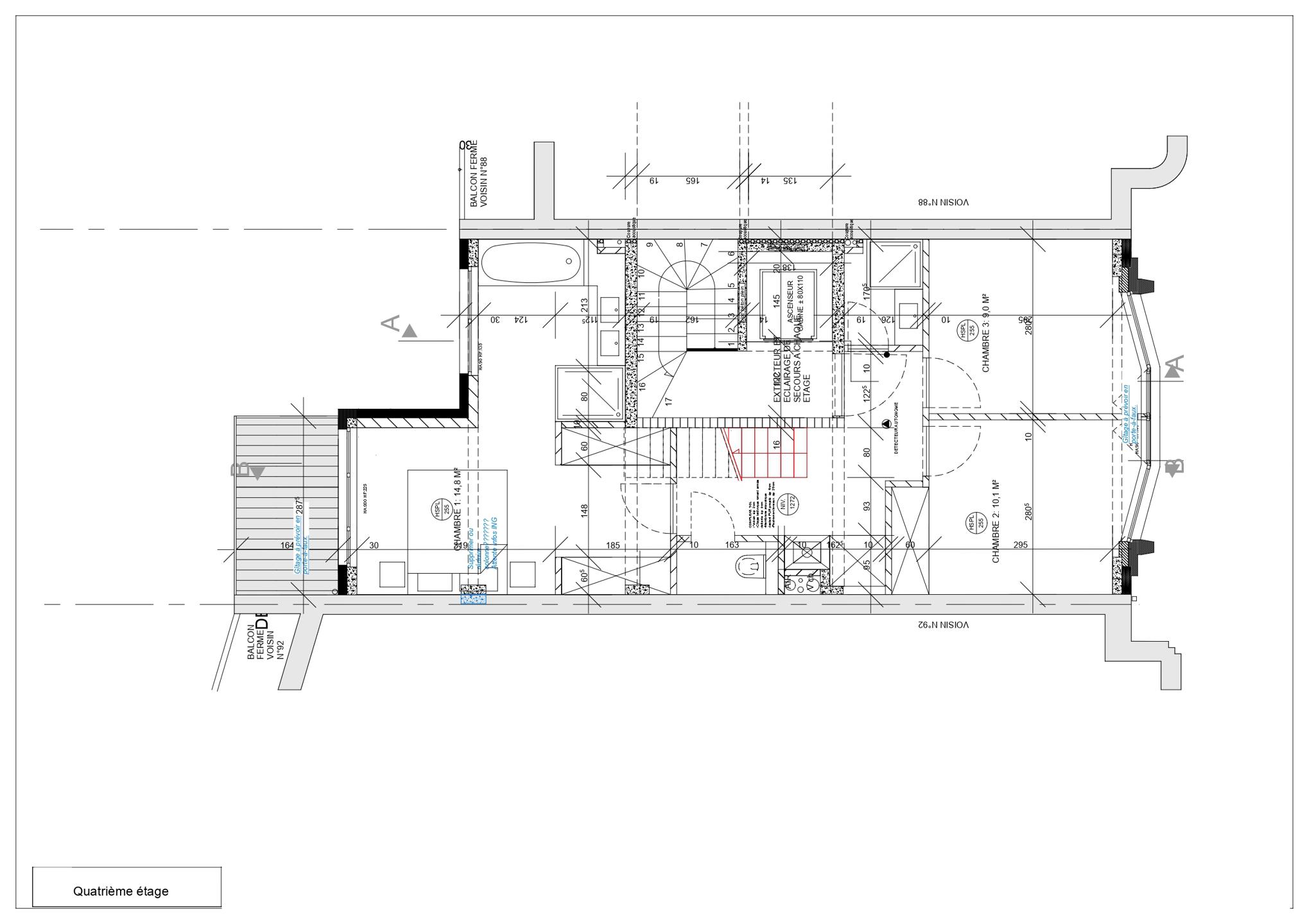
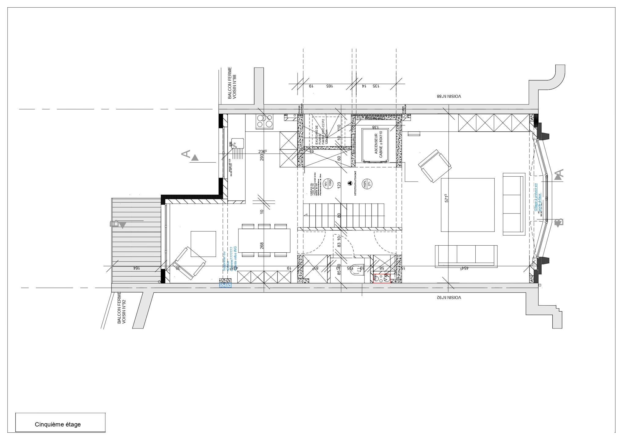
Plasky | De Jamblinne De Meux: Sky Realty a le plaisir de vous présenter en exclusivité ce magnifique appartement duplex (3 CH / 1 SDB / 1 SDD) de 133 m² agrémenté de deux terrasses aux deux derniers étages (avec ascenseur) d'une construction neuve. Première occupation. Il se compose comme suit: au 5e étage: un spacieux séjour de ± 42 m² (accessible directement depuis l'ascenseur, parquet en chêne naturel, placards sur mesure, luminaires et spots led design, vidéophonie, double vitrage, etc.), une grande cuisine ouverte super équipée (Siemens), une terrasse, une toilette séparée et des placards sur mesure; au 4e étage (niveau inférieur): l'escalier avec le hall de nuit, des placards sur mesure, une chambre à l'arrière (garde-robe sur mesure) avec une terrasse et SDB en suite (baignoire, douche, lavabo double vasque, radiateur porte-serviettes), deux chambres en façade avant, une salle de douche séparée (douche, lavabo, radiateur porte-serviettes), une toilette séparée, une grande cave privative en sous-sol, un grand local vélo pratique coté rue. Finitions haut de gamme. Stores déjà installés aux fenêtres. Localisation pratique à coté des transports, des commerces & de toutes les facilités. Supermarché Colruyt juste à coté de l'immeuble. A proximité immédiate des Institutions Européennes (Schuman). Libre immédiatement. Loyer: 2000 € + 150 € charges (forfait pour électricité & nettoyage des communs, ascenseur et l'assurance avec abandon de recours).
Avenue Adolphe Lacomble 90 - 1030 Schaerbeek
Référence | 4698757 |
---|---|
Catégorie | Duplex |
Meublé | Non |
Nombre de chambres | 3 |
Nombre de salles de bain | 2 |
Garage | Non |
Terrasse | Oui |
Parking | Non |
Surface habitable | 133 m² |
Disponibilité | immédiatement |
Année de construction | 2022 |
---|---|
Parking intérieur | Non |
Parking extérieur | Non |
Etage | 5 |
---|---|
Nombre d'étages | 5 |
Accès handicapés | Oui |
---|---|
Cuisine | Oui |
Chauffage (ind/coll) (type (ind/coll)) | individuel |
Ascenseur | Oui |
Double vitrage | Oui |
Chauffage (type) | gaz |
Type d'ascenseur | personnes |
Type de cuisine | amer. super-équipée |
Sdb (type) | douche et bain |
Double vitrage (type) | isol. thermique et acoustique |
Videophone | Oui |
Surface bâtie (surf. bât. princ.) | 133 |
---|---|
Nbre de toilette(s) (nombre) | 3 |
Chambre 1 (surface) | 15 m² |
Chambre 2 (surface) | 11 m² |
Chambre 3 (surface) | 11 m² |
Largeur de façade | 5.5 |
Nbre de terrasse(s) (nombre) | 2 |
Salle de séjour (surface) | 42 m² |
Cuisine (surface) | 6 m² |
Orientation de la terrasse 1 | nord-ouest |
Buanderie | Oui |
---|---|
Cave | Oui |
Magasins (distance (m)) | 20 |
---|---|
Écoles (distance (m)) | 100 |
Transports en commun (distance (m)) | 20 |
Plage (distance (m)) | 108000 |
Centre sportif (distance (m)) | 20 |
Magasins | Oui |
Ecoles | Oui |
Transports en commun | Oui |
Plage | Oui |
Centre sportif | Oui |
Autoroute | Oui |
Autoroute (distance (m)) | 370 |
Charges locataire (montant) | 150 € |
---|---|
Garantie locative (nombre de mois) | 2 |
Loué | Non |
Piscine | Non |
---|
Électricité | Oui |
---|---|
Télévision par cable | Oui |
Gaz | Oui |
Câbles téléphoniques | Oui |
Eau | Oui |
Châssis (type) | aluminium thermique |
---|
Type d'environnement | zone d'habitation |
---|---|
Type d'environnement 2 | résidentiel |
Exposition de la façade avant | sud-est |
Surface de terrasse 1 | 10 m² |
---|
Destination bâtiment (type) | privé - habitation |
---|---|
Affectation urbanistique | zone d'habitat |
Porte blindée | Oui |
---|
Certificat d'électricité (oui/non) | oui, conforme |
---|
Emission CO2 (émission CO2) | 11.18 |
---|---|
PEB code unique | B+ |