
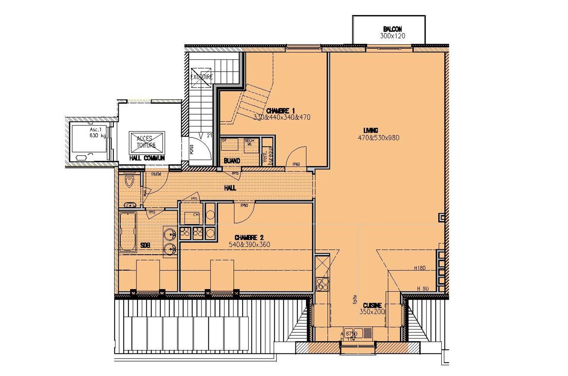
*** L o u é *** SCHUMAN / QUARTIER EUROPEEN / SQUARE MARIE-LOUISE: idéalement situé à coté des transports et de toutes les facilités, ce splendide appartement penthouse 2 chambres neuf de 132 m² vous enchantera par ses belles finitions et sa magnifique vue sur le plan d'eau du Square Marie-Louise. Il offre: un living traversant de 50m² avec terrasse et un insert gaz design (télécommandable), une cuisine hyper-équipée (Siemens), 2 grandes chambres (18m² avec garde-robe sur mesure & 16m² ), une SDB (bain, douche, lavabo double), une toilette séparée, une buanderie équipée, une grande cave, un local vélo/poussette, parkings en option. Belles finitions et des équipements de très haut standing alliant luxe, modernité et sécurité. Système de ventilation double-flux, chauffage-sol, parquet, spots avec variateurs, vidéophonie, porte blindée, alarme, coffre, isolation de haute qualité et chauffage individuel au gaz (faible consommation énergétique). Une adresse prisée en plein coeur du Quartier Européen, à 300m de Schuman (Métro - Gare - Taxis - Villo - Cambio - STIB Airport Line - etc.) avec tous les services à proximité: restaurants, cafés, supermarchés, petits commerces, banques, pharmacies, poste, centre de fitness et médical, etc. Accès aisé aux grands axes autoroutiers. Le Parc du Cinquantenaire est à 3 minutes à pied. Un quartier sécurisé, verdoyant et agréable à vivre. Libre immédiatement. PEB: B+. Charges communes: provision de 140€/mois.
Square Marie-Louise 58 - 1000 Bruxelles
Référence | 4006602 |
---|---|
Catégorie | Penthouse |
Meublé | Non |
Nombre de chambres | 2 |
Nombre de salles de bain | 1 |
Garage | Non |
Terrasse | Oui |
Parking | Oui |
Surface habitable | 132 m² |
Disponibilité | immédiatement |
Année de construction | 2014 |
---|---|
Parking intérieur | Oui |
Parking extérieur | Non |
Parking(s) intérieur (nombre) | 1 |
Etage | 5 |
---|---|
Nombre d'étages | 5 |
Accès handicapés | Oui |
---|---|
Cuisine | Oui |
Chauffage (ind/coll) (type (ind/coll)) | individuel |
Ascenseur | Oui |
Double vitrage | Oui |
Chauffage (type) | chauffage au sol |
Type d'ascenseur | personnes |
Type de cuisine | amer. super-équipée |
Sdb (type) | tout confort |
Double vitrage (type) | isol. thermique et acoustique |
Videophone | Oui |
Surface bâtie (surf. bât. princ.) | 132 |
---|---|
Nbre de toilette(s) (nombre) | 1 |
Chambre 1 (surface) | 18 m² |
Chambre 2 (surface) | 14 m² |
Largeur de façade | 10 |
Nbre de terrasse(s) (nombre) | 1 |
Salle de séjour (surface) | 50 m² |
Cuisine (surface) | 7 m² |
Orientation de la terrasse 1 | sud-est |
Buanderie | Oui |
---|---|
Cave | Oui |
Affectation urbanistique (type) | Logement |
---|---|
Destination bâtiment (type) | privé - habitation |
Affectation urbanistique | zone d'habitat avec une valeur cult., hist. et/ou esthétique |
Magasins (distance (m)) | 200 |
---|---|
Écoles (distance (m)) | 400 |
Transports en commun (distance (m)) | 100 |
Centre sportif (distance (m)) | 700 |
Magasins | Oui |
Ecoles | Oui |
Transports en commun | Oui |
Centre sportif | Oui |
Autoroute | Oui |
Autoroute (distance (m)) | 800 |
Charges locataire (montant) | 140 € |
---|---|
Garantie locative (nombre de mois) | 2 |
Loué | Non |
Piscine | Non |
---|
Contrôle d'accès | Oui |
---|---|
Sécurité | Oui |
Type de contrôle d'accès | badge |
Alarme | Oui |
Concierge | Oui |
Porte blindée | Oui |
Électricité | Oui |
---|---|
Télévision par cable | Oui |
Gaz | Oui |
Câbles téléphoniques | Oui |
Eau | Oui |
Châssis (type) | pvc |
---|
Type d'environnement | résidentiel |
---|---|
Type d'environnement 2 | zone d'habitation |
Exposition de la façade avant | nord-ouest |
Risque d'inondation (type innondation) | pas situé en zone inondable |
Type de zone inondable | zone riveraine délimitée |
Surface de terrasse 1 | 3.6 m² |
---|
Certificat d'électricité (oui/non) | oui, conforme |
---|
PEB E-SPEC (kwh/m²/an) | 94 |
---|---|
Emission CO2 (émission CO2) | 19 |
PEB code unique | 20140613-0000233520-01-8 |