
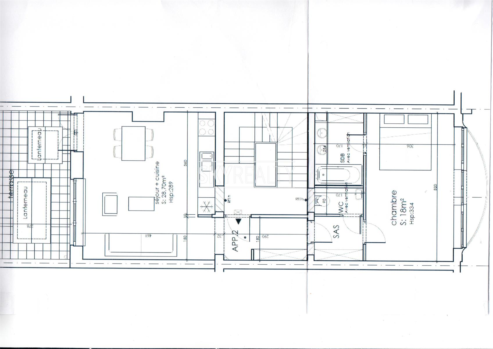
BRAND WHITLOCK | MONTGOMERY | GEORGES HENRI: This magnificent 1 bedroom FURNISHED apartment of ± 80 sqm on the 2nd floor (no elevator) of a beautiful bourgeois house will enchant you with its pleasant terrace, its beautiful amenities and its ideal location close to transport, major motorways and of all the facilities. It offers: an entrance hall with separate toilet, a living room with fully equipped open kitchen (fridge-freezer, ceramic hob, extractor, oven, microwave, dishwasher), a pleasant terrace of 14 sqm, a night hall, a bedroom of 18 sqm (+ balcony), a bathroom (bath / shower, sink, space with washing machine included), a large cellar (option + € 70). Completely refurbished recently. Blackout blinds in the bedroom, new sofa - refrigerator - videophone, beautiful natural oak parquet, triple glazing and individual gas boiler (low energy consumption: EPC C+). Ideal location near the Metro (Montgomery), transport and with easy access to major highways. Supermarkets, shops and restaurants nearby (Georges Henri). Rent € 1,400 + charges € 80 (€ 60 provision for the commons + € 20 provision for water). Electricity, heating (gas) and internet are the responsibility of the lessee. Free July 15, 2021. Minimum lease 1 year. Info and visits: David at +32 495 511 555 (please send an email first via the button *** contact by e-mail *** of the announcement).
Boulevard Brand Whitlock 60 - 1200 Woluwe-Saint-Lambert
Reference | 4391981 |
---|---|
Category | Flat |
Furnished | Yes |
Number of bedrooms | 1 |
Number of bathrooms | 1 |
Garage | No |
Terrace | Yes |
Parking | No |
Habitable surface | 80 m² |
Availability | 15/07/2021 |
Construction year | 1925 |
---|---|
Inside parking | No |
Outside parking | No |
Renovation (year) | 2020 |
Floor | 2 |
---|---|
Number of floors | 3 |
Access for people with handicap | No |
---|---|
Kitchen | Yes |
Air conditioning | Yes |
Type (ind/coll) of heating | individual |
Elevator | No |
Double glass windows | Yes |
Type of heating | gas |
Type of kitchen | US hyper equipped |
Bathroom (type) | shower in bath |
Type of double glass windows | thermic and acoustic isol. |
Videophone | Yes |
Built surface (surf. main building) | 80 |
---|---|
Number of toilets | 1 |
Room 1 (surface) | 18 m² |
Width of front width | 6 |
Number of terraces | 1 |
Living room (surface) | 29 m² |
Orientation of terrace 1 | south-east |
Laundry | Yes |
---|---|
Cellars | Yes |
Type of ground | |
---|---|
Purpose of the building (type) | private - housing |
Urbanistic use (destination) | living zone with a cult., hist. and/or aesthetic value |
Shops (distance (m)) | 200 |
---|---|
Schools (distance (m)) | 200 |
Public transports (distance (m)) | 200 |
Beach (distance (m)) | 130000 |
Sport center (distance (m)) | 200 |
Nearby shops | Yes |
Nearby schools | Yes |
Nearby public transports | Yes |
Nearby beach | Yes |
Nearby sport center | Yes |
Nearby highway | Yes |
Highway (distance (m)) | 700 |
Charges tenant (amount) | 80 € |
---|---|
Number of months of rental guarantee | 2 |
Property occupied | No |
Pool | No |
---|
Access control | Yes |
---|---|
Type of access control | fence |
Phone syst. | Yes |
---|---|
Type of frames | vinyl |
Electricity | Yes |
---|---|
Cable television | Yes |
Gas | Yes |
Phone cables | Yes |
Water | Yes |
Type of environment | city |
---|---|
Type of environment 2 | residential area |
Orientation of the front | west |
Flooding type (flood type) | not located in flood area |
Type of zone (area type) | delimited riverside area |
Terrace 1 (surf) (surface) | 20 m² |
---|
Yes/no of electricity certificate | yes, conform |
---|
Energy certif. class | C |
---|---|
Energy consumption (kwh/m²/y) | 110 |
CO2 emission | 23 |