
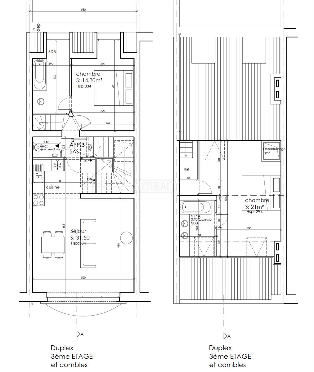
*** RE - LEASE *** Montgomery / Brand Whitlock / Georges-Henri: This beautiful 2 bedroom furnished duplex apartment of 100 sqm on the top floors (3rd and 4th / no elevator) of a beautiful mansion will seduce you with its brightness, the quality of its renovation and its popular location, next to transport, services and all facilities. It is composed as follows: on the 3rd floor: an entrance hall (armored door, intercom), a pleasant living room (nice view of the park), an equipped open kitchen (fridge-freezer, ceramic hob, hood, oven, microwave ), a bedroom and en-suite bathroom (bath / shower, sink, towel rail radiator, space with a connection for a washing machine), a separate toilet; on the 4th floor: a large bedroom (including bed and wardrobe) with en-suite bathroom (bath / shower, sink, towel rail radiator). Double glazing and oak flooring throughout. Beautiful stairwell. Ideal location close to Montgomery, next to major highways, transport (metro, tram, bus) and shops (rue Georges Henri). The duplex will be furnished. € 60 charges (€ 50 package for common and € 10 provision for water), heating (individual gas boiler), electricity and telecoms (internet / TV / Tel.) are the responsibility of the lessee. Free immediately. For any further information or to schedule a viewing please feel free to contact David @ +32 495 511 555 or by clicking on the *** Contact by Email *** Button on the Immoweb advertising.
Boulevard Brand Whitlock 60 Box 3 - 1200 Woluwe-Saint-Lambert
Reference | 3977641 |
---|---|
Category | Duplex |
Furnished | Yes |
Number of bedrooms | 2 |
Number of bathrooms | 2 |
Garage | No |
Terrace | No |
Parking | No |
Habitable surface | 100 m² |
Availability | immediately |
Construction year | 1906 |
---|---|
Inside parking | No |
Outside parking | No |
Renovation (year) | 2010 |
Floor | 3 |
---|---|
Number of floors | 3 |
Access for people with handicap | No |
---|---|
Kitchen | Yes |
Type (ind/coll) of heating | individual |
Elevator | No |
Double glass windows | Yes |
Type of heating | gas |
Type of kitchen | US fully fitted |
Bathroom (type) | shower and short bath |
Type of double glass windows | thermic and acoustic isol. |
Intercom | Yes |
Built surface (surf. main building) | 100 |
---|---|
Number of toilets | 1 |
Room 1 (surface) | 21 m² |
Room 2 (surface) | 14 m² |
Width of front width | 6.5 |
Living room (surface) | 32 m² |
Kitchen (surf) (surface) | 6 m² |
Laundry | Yes |
---|
Type of ground | |
---|---|
Purpose of the building (type) | independant + housing |
Urbanistic use (destination) | living zone with a cult., hist. and/or aesthetic value |
Shops (distance (m)) | 200 |
---|---|
Schools (distance (m)) | 300 |
Public transports (distance (m)) | 100 |
Sport center (distance (m)) | 300 |
Nearby shops | Yes |
Nearby schools | Yes |
Nearby public transports | Yes |
Nearby sport center | Yes |
Nearby highway | Yes |
Highway (distance (m)) | 400 |
Charges tenant (amount) | 60 € |
---|---|
Number of months of rental guarantee | 2 |
Property occupied | No |
Access control | Yes |
---|---|
Security | Yes |
Type of access control | barrier |
Alarm | Yes |
Security door | Yes |
Electricity | Yes |
---|---|
Cable television | Yes |
Gas | Yes |
Phone cables | Yes |
Water | Yes |
Type of frames | vinyl |
---|
Type of environment | residential area |
---|---|
Type of environment 2 | city |
Orientation of the front | west |
Flooding type (flood type) | not located in flood area |
Type of zone (area type) | delimited riverside area |
Yes/no of electricity certificate | yes, conform |
---|
Energy consumption (kwh/m²/y) | 366 |
---|---|
CO2 emission | 73 |