
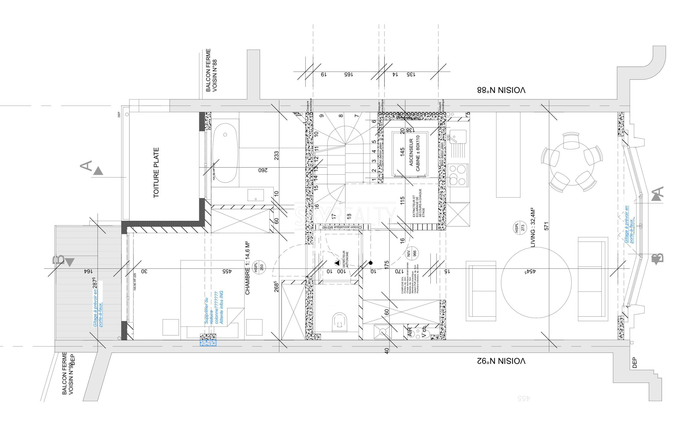
Plasky | De Jamblinne De Meux: Sky Realty is pleased to present to you exclusively this magnificent (1 bedroom / 1 bathroom) apartment of 64 sqm with a pleasant terrace on the 3rd floor (with elevator) of a new building. First occupation after construction. It is composed as follows: an entrance hall, a spacious and bright living room of ± 31 sqm (reinforced door, natural oak parquet, custom-made cupboards, designer led lights and spotlights, videophone, double glazing, etc.), a fully equipped open kitchen (Siemens), a bedroom (with built-in wardrobe) of 12 sqm at the back with a pleasant terrace and an en-suite bathroom (bath/shower, washbasin, towel radiator), a toilet separate, a large private cellar in the basement and a large practical bike room on the street side. High-end finishes. Blinds already installed on the windows. Convenient location next to transport, shops and all facilities. Colruyt supermarket right next to the building. In the immediate vicinity of the European Institutions (Schuman). Free immediately. Rent: € 1,100 € + € 100 of charges (flat rate for electricity and cleaning of common areas, lift and insurance with waiver of recourse). Energy class: B+ (low energy consumption).
Avenue Adolphe Lacomble 90 - 1030 Schaerbeek
Reference | 4698686 |
---|---|
Category | Flat |
Furnished | No |
Number of bedrooms | 1 |
Number of bathrooms | 1 |
Garage | No |
Terrace | Yes |
Parking | No |
Habitable surface | 64 m² |
Availability | immediately |
Construction year | 2022 |
---|---|
Inside parking | No |
Outside parking | No |
Floor | 3 |
---|---|
Number of floors | 5 |
Access for people with handicap | Yes |
---|---|
Kitchen | Yes |
Type (ind/coll) of heating | individual |
Elevator | Yes |
Double glass windows | Yes |
Type of heating | gas |
Type of elevator | person |
Type of kitchen | US hyper equipped |
Bathroom (type) | shower and bath tub |
Type of double glass windows | thermic and acoustic isol. |
Videophone | Yes |
Built surface (surf. main building) | 64 |
---|---|
Number of toilets | 1 |
Room 1 (surface) | 12 m² |
Width of front width | 5.5 |
Number of terraces | 1 |
Living room (surface) | 31 m² |
Orientation of terrace 1 | north-west |
Laundry | Yes |
---|---|
Cellars | Yes |
Shops (distance (m)) | 20 |
---|---|
Schools (distance (m)) | 100 |
Public transports (distance (m)) | 20 |
Beach (distance (m)) | 108000 |
Sport center (distance (m)) | 20 |
Nearby shops | Yes |
Nearby schools | Yes |
Nearby public transports | Yes |
Nearby beach | Yes |
Nearby sport center | Yes |
Nearby highway | Yes |
Highway (distance (m)) | 370 |
Charges tenant (amount) | 100 € |
---|---|
Number of months of rental guarantee | 2 |
Property occupied | No |
Pool | No |
---|
Electricity | Yes |
---|---|
Cable television | Yes |
Gas | Yes |
Phone cables | Yes |
Water | Yes |
Type of frames | thermal aluminium |
---|
Type of environment | city |
---|---|
Type of environment 2 | residential area |
Orientation of the front | south-east |
Terrace 1 (surf) (surface) | 5 m² |
---|
Purpose of the building (type) | private - housing |
---|---|
Urbanistic use (destination) | living zone |
Security door | Yes |
---|
Yes/no of electricity certificate | yes, conform |
---|
CO2 emission | 9.95 |
---|---|
En. cert. unique code | B+ |