
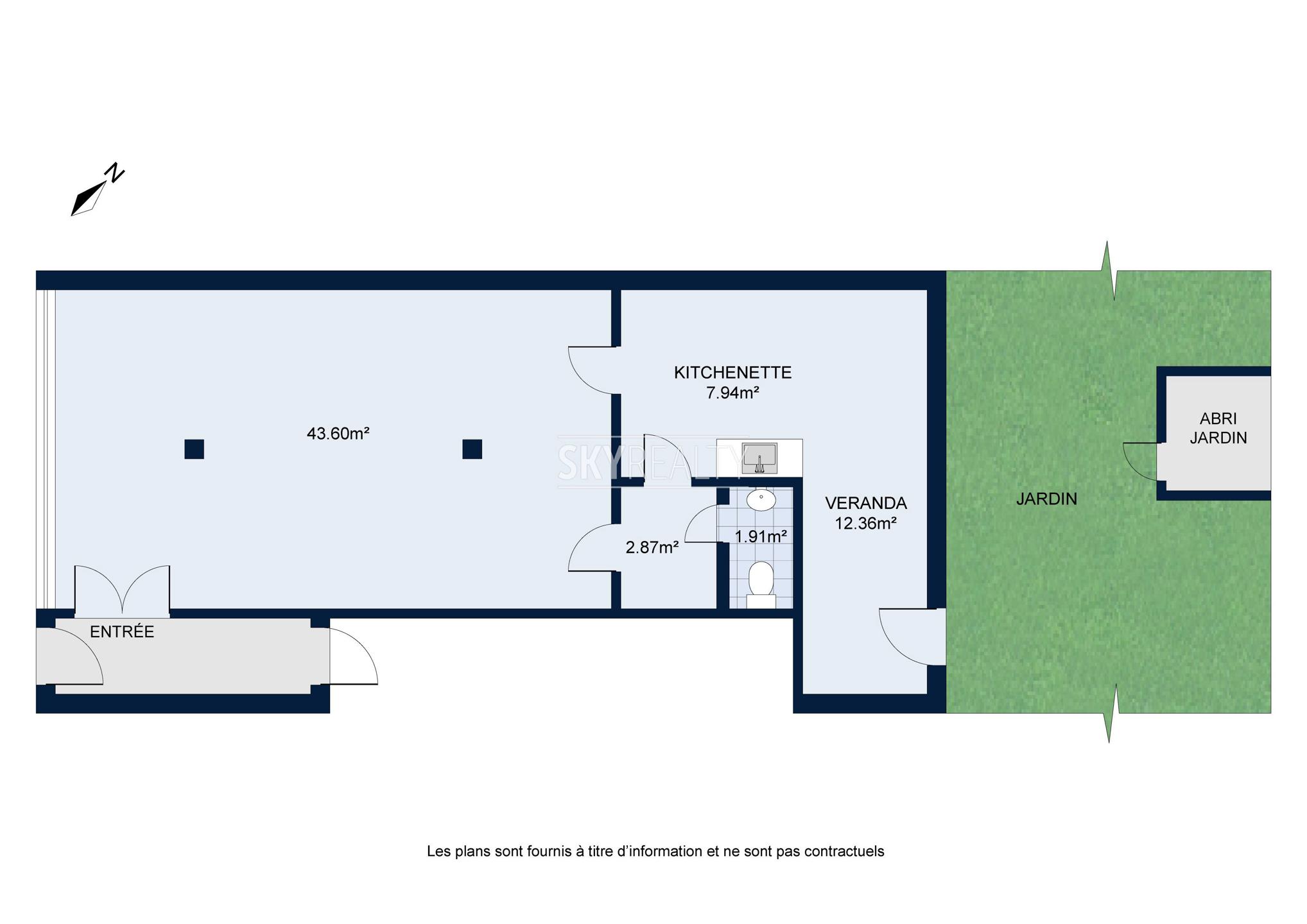
CHAUSSEE DE MALINES: Sky Realty presents this beautiful commercial space with an area of ± 70 sqm with a pleasant garden of ± 70 sqm at the back. It is composed as follows: on the front facade: a large room of 44 sqm with a beautiful window over the entire width of the shop (5m) overlooking the roadway; at the back: a small room of 3 sqm, a toilet, another space of 8 sqm with a kitchenette; on the rear facade: a veranda of 13 sqm giving access to the garden (presence of a garden shed). Formerly rented to a parquet store. Ideal location just next to a major road junction and close to other shops. No additional charge apart from the rent. Separate meters for gas (individual boiler), water and electricity. Rent: Make an offer from 1000 € (rent requested: €1,300) Info & visits: David: +32 495 511 555.
Reference | 4802181 |
---|---|
Category | Individual shop |
Garage | No |
Parking | No |
Habitable surface | 70 m² |
Ground surface | 140 m² |
Availability | immediately |
Floor | 0 |
---|---|
Number of floors | 2 |
Inside parking | No |
---|---|
Outside parking | No |
Access for people with handicap | Yes |
---|---|
Kitchen | Yes |
Type (ind/coll) of heating | individual |
Multipurpose room | Yes |
Elevator | No |
Double glass windows | Yes |
Type of heating | gas |
Type of kitchen | semi fitted |
Type of double glass windows | thermic and acoustic isol. |
Built surface (surf. main building) | 70 |
---|---|
Number of toilets | 1 |
Shop window width (length) | 5 |
Amount of shops general | 1 |
Width of front width | 5 |
Kitchen (surf) (surface) | 2 m² |
Type of toilettes M/W | 1 |
Number of meeting rooms (amount) | 1 |
Shops (distance (m)) | 20 |
---|---|
Schools (distance (m)) | 400 |
Public transports (distance (m)) | 100 |
Sport center (distance (m)) | 100 |
Nearby shops | Yes |
Nearby schools | Yes |
Nearby public transports | Yes |
Nearby sport center | Yes |
Nearby highway | Yes |
Highway (distance (m)) | 1000 |
Sewage | Yes |
---|---|
Electricity | Yes |
Gas | Yes |
Phone cables | Yes |
Water | Yes |
Phone syst. | Yes |
---|---|
Type of frames | other |
Type of environment | commercial environment |
---|---|
Type of environment 2 | city |
Orientation of the front | south-east |
Property occupied | No |
---|
Purpose of the building (type) | commerces |
---|---|
Urbanistic use (destination) | green belt |
Multipurpose room (surface) | 44 m² |
---|
Type of floor covering | tiled |
---|